Langdale, Robin Lane, Bentham

For Sale £420,000

3 2 2

Property Description

In a sought after location with open country on the doorstep, this 3 bed detached dormer bungalow is still within walking distance to all the amenities that Bentham has to offer.

As you enter the property, the entrance hall leads you to an open-plan kitchen/diner featuring a Rayburn and double doors that open onto the rear garden. From here, you can also access a shower room and a sitting room, which in turn opens into a conservatory with further access to the garden, as well as an adjacent bedroom.

A side porch provides a practical space for removing outdoor footwear and offers access to both a cloakroom and a utility room. Off the main hallway, you will find an additional bedroom and the staircase to the first floor.

Upstairs, there is a generously sized double bedroom with ample under-eaves storage, along with a well-appointed bathroom.

Outside, the property is enhanced by delightful, well-tended gardens, with the added benefit of a garage and driveway parking for 3 cars.

Property Information

Tenure: Freehold
Council Tax Band: E
EPC Rating: D
Services: All mains
Broadband: Speeds available up to 49Mbps
Rayburn: Not currently working

High Bentham Location

High Bentham is a vibrant market town offering a good variety of shops, bars, and takeaways. The town benefits from a well-regarded primary school, a medical surgery, and a train station on the Leeds–Lancaster line, providing excellent connectivity.

Families can access excellent secondary education within the catchment areas of Queen Elizabeth School in Kirkby Lonsdale and Settle College. Both of these nearby market towns feature Booths supermarkets and a charming mix of independent shops.

High Bentham is conveniently located about 30 minutes by car from Kendal and Lancaster, with easy access to the M6 motorway. Situated on the northern edge of the Forest of Bowland Area of Outstanding Natural Beauty, it also offers close proximity to the Yorkshire Dales, Lake District, and Morecambe Bay—perfect for scenic day trips and outdoor adventures.

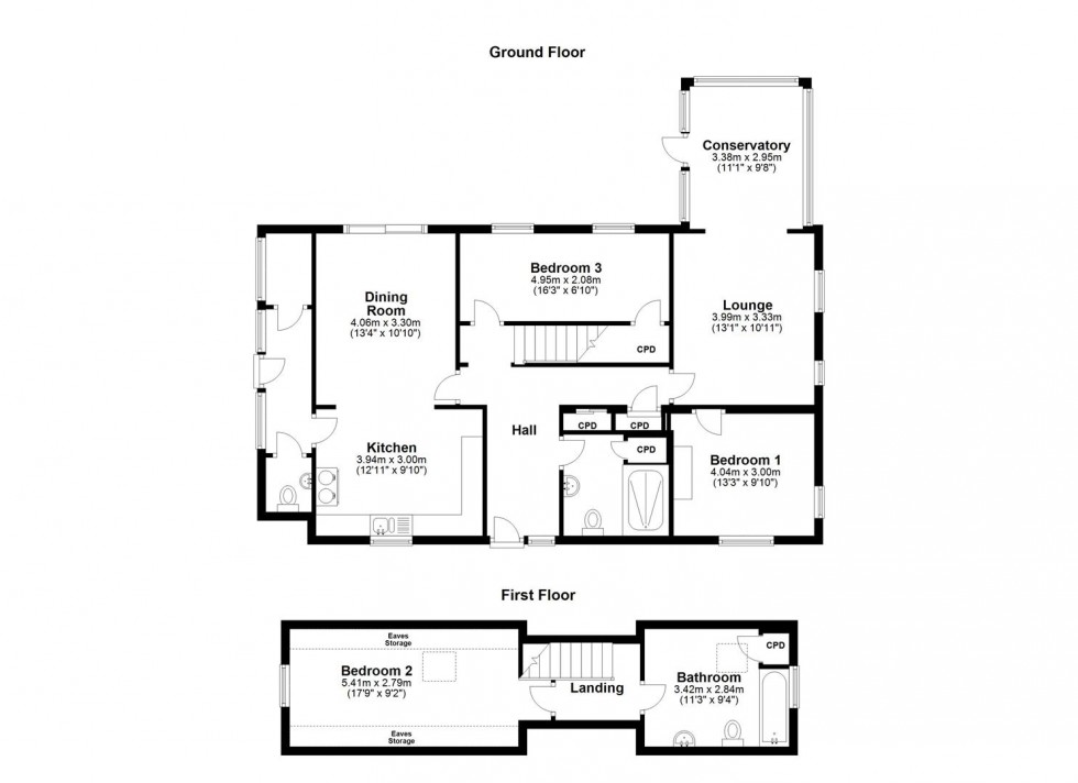
Ground Floor Accommodation

Entrance Hall

Oiled oak flooring, radiator, built-in cupboards, UPVC double glazed window and door to front aspect.

Kitchen (3.94m x 3.00m)

Karndean flooring, range of wall and base units, 1.5 stainless steel drainer sink with separate filtered water tap, plumbing for washing machine and dishwasher, space for fridge freezer, boiler, cupboard housing the consumer unit, UPVC double glazed window to front.

Dining Room (4.04m x 3.28m)

Karndean flooring, radiator, UPVC double glazed patio doors to garden.

Side Entrance Porch

Useful side porch with tiled flooring, radiator, internal stable door to kitchen, single glazed windows with textured glass and timber panel door to side aspect.

Pantry

Wood laminate herringbone style flooring, fitted shelves, single glazed window with textured glass to side aspect.

Cloakroom

Tiled flooring, wash basin, toilet, corner mirror, single glazed window with textured glass to front aspect.

Sitting Room (3.99m x 3.33m)

Karndean flooring, 2 radiators, internal door to bedroom, opening to conservatory, 2 UPVC double glazed windows to side aspect.

Conservatory (3.38m x 2.95m)

Karndean flooring, radiator, cord operated fan, UPVC double glazed windows to all aspects and double glazed door to garden.

Shower Room (2.39m x 1.78m)

Vinyl flooring, heated towel rail, wash basin, mirrored vanity unit, toilet, corner shower cubicle, spacious built-in airing cupboard, extractor fan, UPVC double glazed window with textured glass to the front aspect.

Bedroom Two (4.04m x 3.00m)

Double bedroom with fitted carpet, radiator, UPVC double glazed windows to the front and side aspect.

Bedroom Three (4.93m x 2.06m)

Good-sized ground floor bedroom with fitted carpet, 2 radiators, large under stairs cupboard, 2 UPVC double glazed windows to rear aspect.

First Floor

Landing

Fitted carpet, under eave storage - unboarded, access to bedroom one and bathroom.

Bedroom One (5.38m x 2.77m)

Double bedroom with fitted carpet, 2 radiators, under eaves storage cupboards to both sides of room, Velux window, UPVC double glazed window to side aspect.

Bathroom (3.40m x 2.82m)

Wood laminate flooring, radiator, wash basin, toilet, bath with shower over, fitted airing cupboard, under eave storage - unboarded, extractor fan, Velux window, UPVC double glazed window with textured glass to side aspect.

Outside

Front

Double leaf gate providing access to property driveway, flagged pathway and paved seating area, established flower beds, timber potting shed round the side with access to rear garden on both sides.

Rear

Well maintained gardens comprising gravel pathways, flagged patio area, raised pond with fountain and mature borders with established flower beds, trees, shrubs, greenhouse, timber steps up to conservatory and dining room.

Parking & Garage

Driveway providing parking for 2-3 cars, garage with power.

Agent Notes

Fisher Hopper has not tested services, fixtures, fittings, central heating, gas and electrical systems. If in doubt, purchasers should seek professional advice. Items in these photographs may not be included in the sale of the property.

OFFER PROCEDURE

Fisher Hopper, as agents in the sale of the property, are required to formally check the identification of prospective purchasers. In addition, purchasers may be asked to provide information regarding the source of funds as part of our offer handling process.

At the point an offer is accepted, a non refundable onboarding fee of £25.00 (inc. VAT) per person will be payable.

This fee covers the legally required Anti-Money Laundering (AML) searches and secure digital verification to progress your purchase promptly and safely.

FINANCIAL ADVICE
Free and no obligation mortgage advice is available on our website. Alternatively, please contact us to arrange a call from our mortgage broker.
Your home is at risk if you do not keep up the repayments on a mortgage or other loan secured on it. Written details available upon request

MARKET APPRAISALS
If you have a property or business which needs a market appraisal or valuation, our local knowledge, experience and coverage will ensure you get the best advice. Our Guild Referral Network of over 800 specially selected offices can provide this no obligation service anywhere in the country. Call or email now to let us get you moving.

INTRODUCERS FEES
Fisher Hopper Ltd receives an introducers fee from:

Napthens and Taylor Rose Solicitors of £100.00 + VAT for all successful introductions.
Lakes Mortgages of £250.00 + VAT for all successful introductions.

FISHER HOPPER
Fisher Hopper is a trading name for Fisher Hopper Limited, which is registered in England No 08514050. The registered office for the company is: 5 Battalion Court, Colburn Business Park, Catterick Garrison, England, DL9 4QN. Company Director: M. Alexander
The office address for Fisher Hopper is: 43 Main Street, Bentham, Lancaster, North Yorkshire LA2 7HJ.

FLOOR PLANS
Please note, floor plans are not to scale and are for illustration purposes only. Plans are produced using PlanUp.

  • Detached 3 Bed Dormer Bungalow
  • Kitchen With Rayburn
  • Dining Room With Patio Doors To The Garden
  • Lounge & Conservatory
  • Ground Floor Shower Room
  • 2 Ground Floor Bedrooms
  • First Floor Bedroom & Bathroom
  • Garage & Off-Road Parking For 3 Cars
  • Well-Tended Gardens
  • Dales, Bowland & Lakes
Floorplan for Langdale, Robin Lane, Bentham
EPC Graph for Langdale, Robin Lane, Bentham
Similar Properties

Get an instant online valuation

Find out how much your property is worth